Внимание, новый проект!
07.04.2021
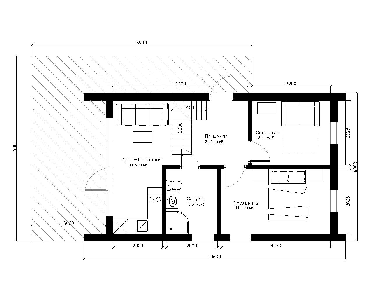
FINHA на базе коннекторов V200 площадь 60 м2 – современный стильный барнхаус. Площадь застройки – 60 м², габариты – 6 х 10 х 6 м, общая жилая площадь – 80 м². Проект предусматривает две полноценные спальни, гостиную-кухню со вторым светом и шикарным остеклением, мансардный этаж, который может быть использован как детская, библиотека или место для уединения. Дом, в котором все на своем месте - FINHA V200/60! Проект может быть адаптирован по вашим пожеланиям и размерам. Разработан официальным дилером компании FINHA. Евгений Рябов, Раменское, Михалевича, 51А, офис 27, +7 (903) 2151215.
СМОЖЕТ КАЖДЫЙ. ПРОЕКТ И ДОСТАВКА БЕСПЛАТНО
