Телефон и мессенджеры:
+7 (927) 020 20 24
Задать вопрос
КАТАЛОГ
Toggle navigation
Главная
Продукция
Проект бесплатно за день
Стать дилером
Сделай сам
Новости
Контакты завода
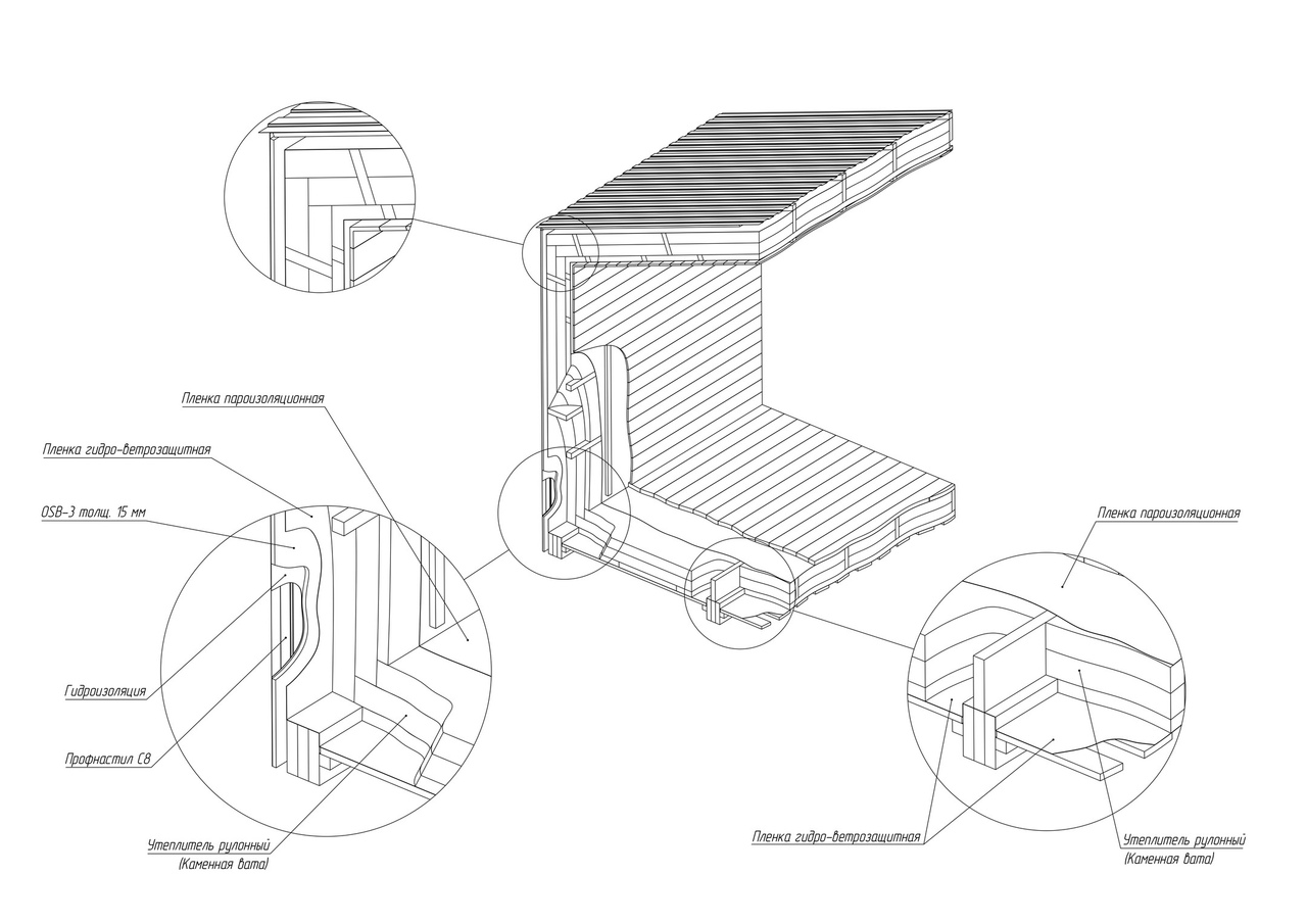
"Пирог" стен для FINHA S 40
29.04.2019
Схема из инструкции.
Возврат к списку
СМОЖЕТ КАЖДЫЙ. ПРОЕКТ И ДОСТАВКА БЕСПЛАТНО
×
Ваше сообщение