Как за день собрать каркас барна с острой крышей?
09.03.2023
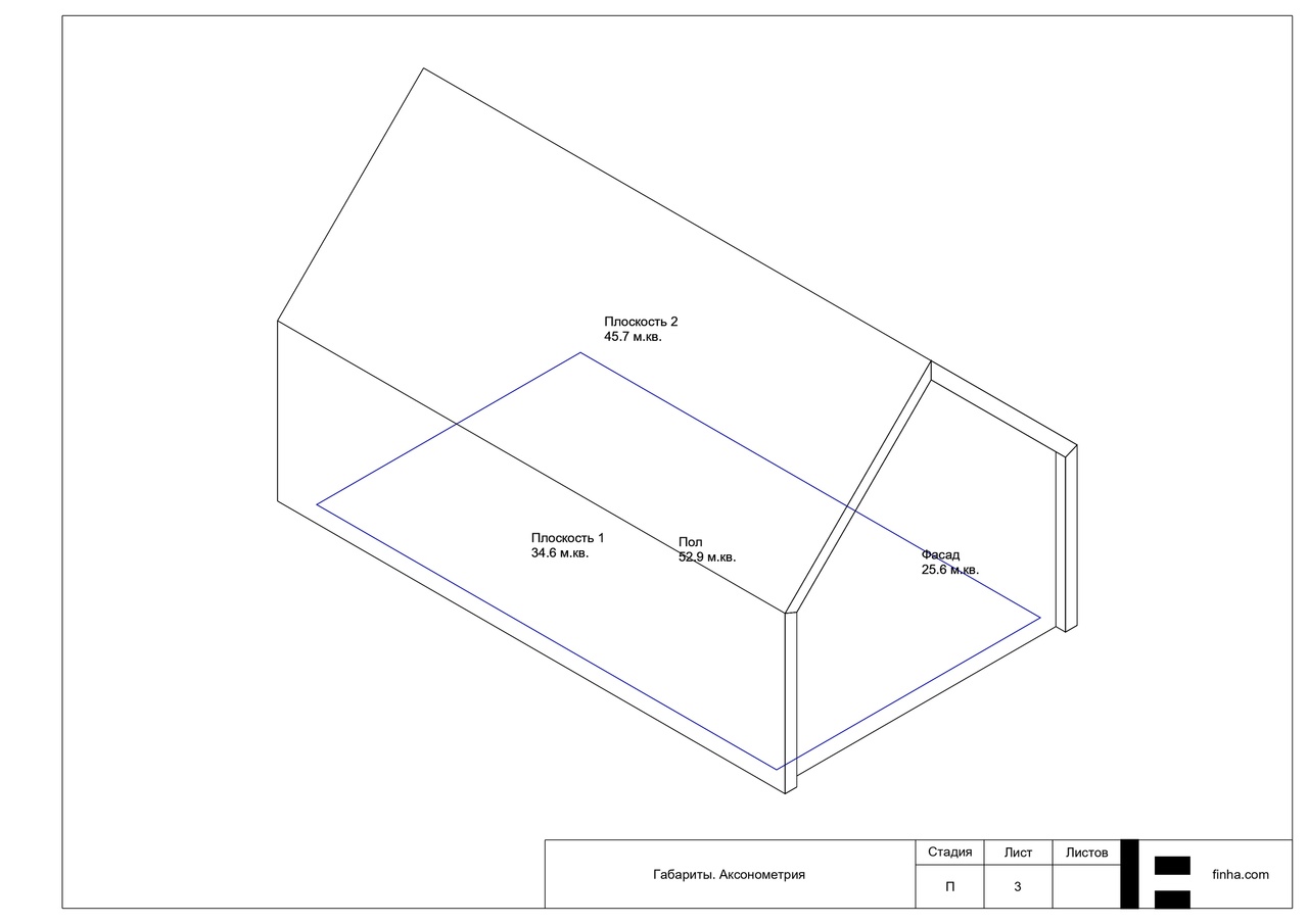
На коннекторах FINHA модели V200. Закажите бесплатно на сайте https://finha.com/production/connector/v200/ сборочный проект по вашим размерам. Вы получите брошюру - пример в посте. В ней будет чертеж фундамента, кубатура доски для каркаса, размер балок, количество и способы фиксации обшивки, пирог стен, основные узлы и количество комплектов коннекторов для сборки. Вам останется напилить обычную доску по размерам и собрать каркас по инструкции. Сможет каждый.
СМОЖЕТ КАЖДЫЙ. ПРОЕКТ И ДОСТАВКА БЕСПЛАТНО
