Барны на коннекторах FINHA
11.11.2024
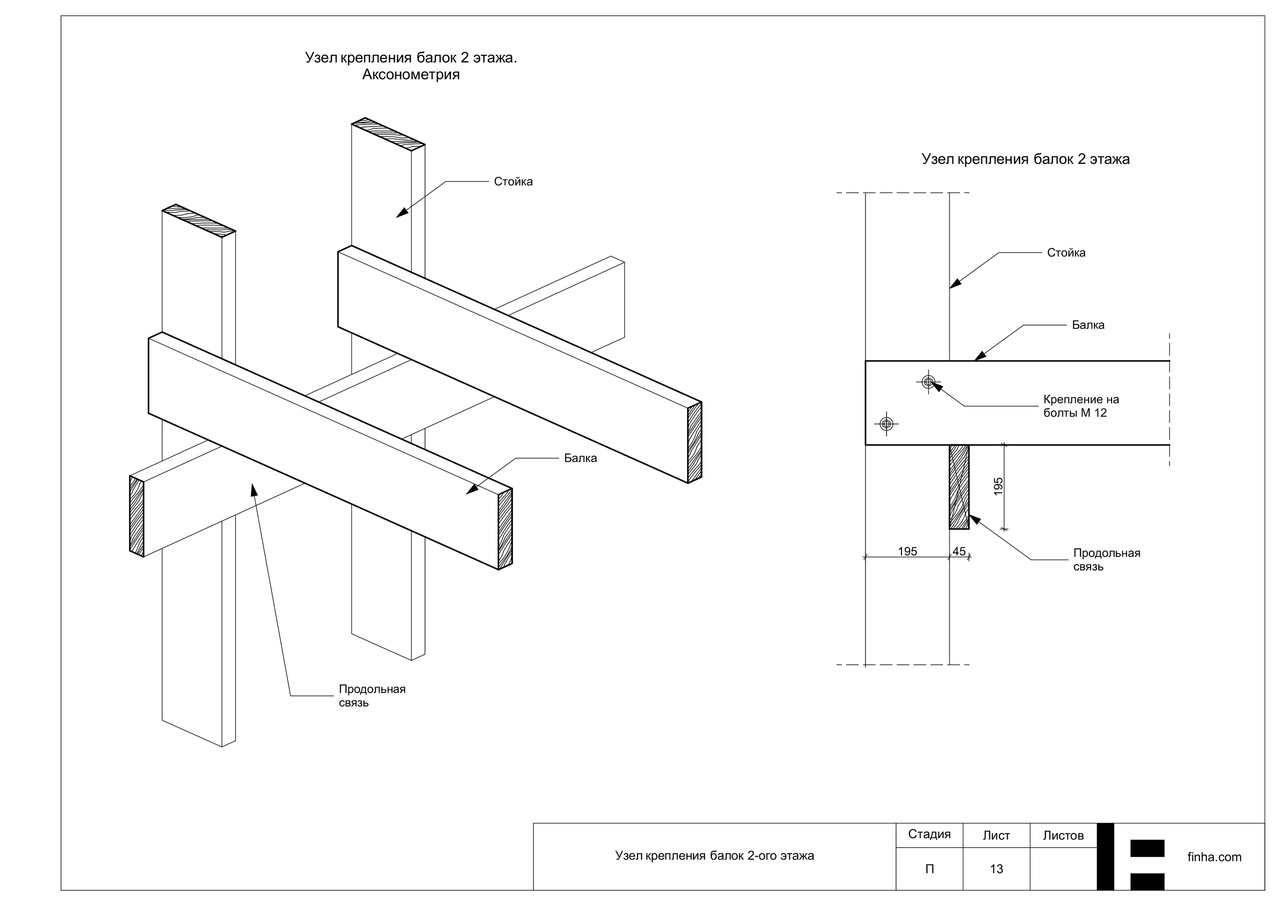
Модели V200 и V150 спокойно могут быть двухэтажными. Для 4-го снегового района и 2-го ветрового района, что соответствует Московской и прилегающим областям, при ширине 7 м высота вертикальных балок у FINHA V200 допустима до 4 м. Максимальная ширина здания FINHA V150 при высоте вертикальных балок 4 м равна 5,9 м. Лаги пола второго этажа фиксируются к вертикальным балкам, но должны также иметь независимые опоры. Сборочный проект по вашим размерам за день бесплатно, заказ на сайте finha.com.
СМОЖЕТ КАЖДЫЙ. ПРОЕКТ И ДОСТАВКА БЕСПЛАТНО
